Umgestaltung eines ehemaligen Schlachthofgeländes
Brauereiweg, Flensburg

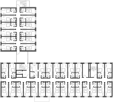
HOTEL, 1. – 3. Obergeschoss

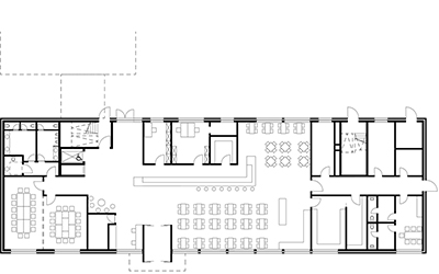
HOTEL, Erdgeschoss

HOTEL, Schnitt A-A

HOTEL, Schnitt B-B

HOTEL, Schnitt C-C
Standort: Flensburg - Neustadt
Leistungsphasen: 1-2
Bauherr: 363. Hotelentwicklung GmbH & Co. KG
Planung: 2008 / 2009

Gebäudeensemble mit Hotel, Gastronomie, Fitness-, Büro- und Gewerbekomplex
Der städtebauliche Entwurf im Rahmen eines Hotelprojektes auf der Freifläche des ehemaligen Schlachthofgeländes bezieht in der Entwicklung eines stimmigen Gebäudeensembles aus verschiedenen Nutzungen die zwei historischen Gebäude des alten Schlachthofes an zentraler Stelle mit ein und fokussiert die Wiederbelebung des attraktiven Standortes in unmittelbarer Nähe der Förde.
Kernzentrum des Neubau-Ensembles ist das Hotelprojekt, um das herum sich über Eck ein Sport- und Fitnesskomplex mit medizinischen Einrichtungen und ein Bürokomplex mit Einzelhandel und Gewerbe im Sockelgeschoss angliedern. Die Freifläche in der Mitte wird parkartig angelegt und soll in Kooperation mit dem Deutschen Alpenverein und in Zusammenarbeit mit den bereits ansässigen, benachbarten „Spotpiraten“ als Kletter- und Hochseilgarten betrieben werden. In Anlehnung an die ursprüngliche Nutzung des historischen Bauwerks des alten Schlachthaus-Restaurants, das das Straßenbild unverwechselbar prägt, soll das Bauwerk als schlüssige Ergänzung des Standortes originalgetreu renoviert und um einen kleinen Wintergarten erweitert, als Restaurant weiter-genutzt werden.
Die Umgestaltung lässt durch die heterogene Nutzung durch Geschäfts- und Städtereisende, Familien und Einheimische einen lebendigen, pulsierenden Standort entstehen, in dem der historische Charme aufrecht Gebäudeensemble mit Hotel, Gastronomie, Fitness-, Büro- und Gewerbekomplex erhalten bleibt.
