Erweiterung eines REWE-Marktes, zweimalig
Kirchenhang, Hamburg

2. Erweiterung (2017) – Anbau 2 + 3, Gebäuderückseite

1. Erweiterung (2007) – Anbau 1, Gebäuderückseite

Anbau 1-3, Gebäuderückseite (2007 und 2017)

Anbau 4 zur Einhausung der Anlieferung, Frontfassade (2017)

Anbau 4, Frontfassade (2017)
Standort: Hamburg - Eißendorf
Leistungsphasen: 1-9
Bauherr: privat
Planung: 1. Erweiterung 2006/2007 / 2. Erweiterung 2014 - 2021
Fertigstellung: 1. Erweiterung 09.2007 / 2. Erweiterung 09.2017

REWE-Markt, Kirchenhang in Hamburg

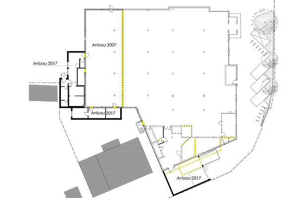
Grundriss Erdgeschoss

Schnitt
Die 1. Erweiterung des vorhandenen REWE-Marktes mit zweigeschossigen Wohnhäusern im Reihenhausstil auf dem Dach erfolgte 2007. In diesem Zuge wurde die Westfassade des REWE-Marktes abgebrochen und ein 265 m² großer Anbau errichtet, um die Verkaufsfläche zu erweitern. Zehn Jahre später erfolgte 2017 die nächste Erweiterung, drei weitere kleine Anbauten wurden ergänzt – u. a. mit einem Fleischereibereich und weiteren notwendigen Nebenräumen. Die Dächer der Anbauten wurden jeweils mit einer extensiven Dachbegrünung begrünt. Als dritter Anbau ist die bestehende Anlieferung entlang der Straße vollständig eingehaust, um Ruhe in das Nachbarschaftsverhältnis zu bringen. Das Verblendmauerwerk aller Anbauten ist optisch und auch im Fugenverlauf perfekt an das Bestandsmauerwerk angepasst, so dass sich alle Erweiterungsbauten nahezu unmerklich in das Gesamtbild des Gebäudes einfügen.
