Erweiterung eines Discountmarktes
Heußweg, Hamburg

vorher

......

nachher
Standort: Hamburg - Eimsbüttel
Leistungsphasen: 1-9
Bauherr: privat
Planung: 2008 - 2011
Fertigstellung: 11.2011

Discountmarkt, Heußweg in Hamburg

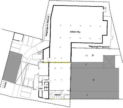
Grundriss Erdgeschoss

Schnitt
Der Discountmarkt im Erdgeschoss des teils viergeschossigen Gebäudes im Zentrum des Hamburger Stadtteils Eimsbüttel, wurde vollständig entkernt und modernisiert und durch einen Anbau im hinteren Bereich des Grundstückes auf der Fläche der bestehenden Tiefgarage von 300 m² auf eine Verkaufsraumfläche von 700 m² erweitert. Eine besondere Herausforderung stellten hierbei die extrem schmale Zufahrt zum Innenhof, die beengten Platzverhältnisse beim Bau sowie auch der Höhenunterschied zwischen dem Terrain der Straße und der Oberkante der Tiefgarage, auf der der Anbau errichtet wurde, dar. Der Höhenunterschied wurde mit einem großzügigen, barrierefreien Eingangsbereich mit 5 % Gefälle gelöst. Weiter wurde das Dach des eingeschossigen Anbaus mit einer bunten Mischung aus Sukkulenten, Kräutern und Gräsern vollständig begrünt, so dass der Innenhof, der vorher großteils versiegelt war, durch die Bebauung nicht nur eine ökologische, sondern auch eine gestalterische Aufwertung erfährt.
